你有没有想过,面对那些密密麻麻的水稳料仓图纸,是不是感觉像是在看天书呢?别急,今天就来手把手教你如何读懂这些看似复杂的图纸,让你轻松驾驭工程现场!
一、认识水稳料仓图纸

首先,你得知道水稳料仓图纸是什么。水稳料仓,顾名思义,就是用来储存水稳材料的仓库。这些材料主要用于道路、桥梁等基础设施建设。而图纸,则是这些仓库的设计蓝图。
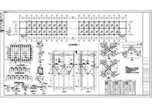
水稳料仓图纸通常包括以下几个部分:
1. 平面图:展示仓库的平面布局,包括各个区域的划分、尺寸等。
2. 立面图:展示仓库的立面结构,包括墙体、门窗、货架等。
3. 剖面图:展示仓库的剖面结构,包括楼层、墙体、梁柱等。
4. 节点详图:展示仓库中一些关键节点的详细结构。
二、读懂平面图

平面图是水稳料仓图纸中最基础的部分。下面,我们就来一步步教你如何读懂它。
1. 识别轴线:图纸上的轴线是确定仓库尺寸和位置的基础。通常,轴线用细线表示,并标注有字母和数字。
2. 测量尺寸:根据轴线,你可以测量出仓库的各个尺寸,如长、宽、高。
3. 识别区域:平面图上通常会标注出各个区域的名称和用途,如材料存放区、办公区、休息区等。
4. 了解通道:平面图上还会标注出仓库的通道,包括主通道和辅助通道。
三、解读立面图

立面图是展示仓库立面结构的重要图纸。以下是如何解读立面图的方法:
1. 识别材料:立面图上会标注出墙体、门窗等材料的名称和厚度。
2. 了解结构:通过立面图,你可以了解仓库的立面结构,如墙体、梁柱、屋顶等。
3. 观察细节:立面图上还会标注出一些细节,如门窗的开启方向、墙体上的装饰等。
四、剖析剖面图
剖面图是展示仓库剖面结构的关键图纸。以下是如何剖析剖面图的方法:
1. 识别层次:剖面图上会展示出仓库的各个层次,如地面、楼层、屋顶等。
2. 了解结构:通过剖面图,你可以了解仓库的剖面结构,如墙体、梁柱、楼板等。
3. 观察细节:剖面图上还会标注出一些细节,如楼板的厚度、梁柱的尺寸等。
五、关注节点详图
节点详图是展示仓库关键节点结构的重要图纸。以下是如何关注节点详图的方法:
1. 识别节点:节点详图上会标注出节点的名称和位置。
2. 了解结构:通过节点详图,你可以了解节点的结构,如连接方式、材料等。
3. 观察细节:节点详图上还会标注出一些细节,如连接件、紧固件等。
读懂水稳料仓图纸其实并不难。只要你掌握了以上方法,就能轻松驾驭这些看似复杂的图纸。当然,实践出真知,多看、多学、多实践,相信你一定能成为工程现场的“图纸达人”!
转载请注明出处:admin,如有疑问,请联系()。
本文地址:https://jcfol.com/post/635.html